






Wohnüberbauung Breitensteinstrasse Zürich
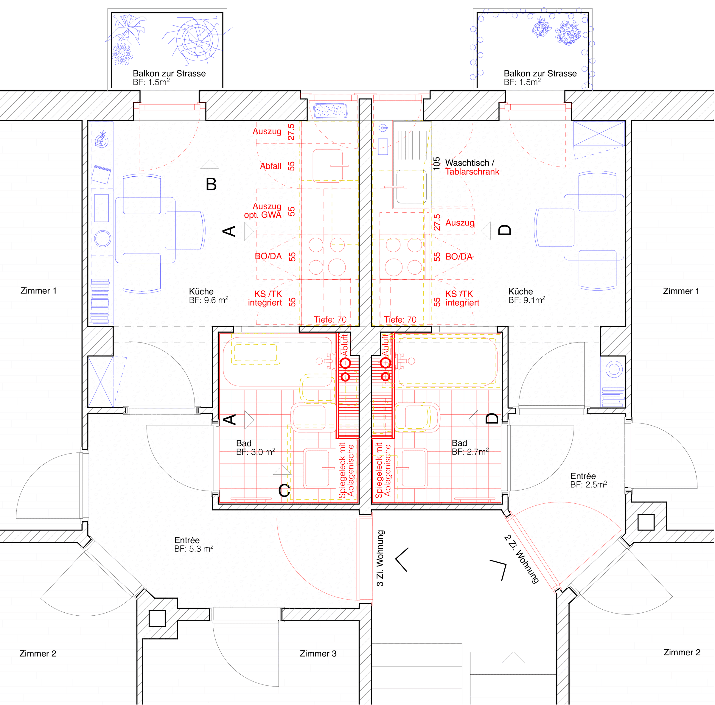
Die zwei einfach gebauten Doppelhäuser zwischen Wipkingerplatz und der Limmat wurden 1922 erstellt. Sie bieten in 24 Wohnungen und 9 Mansarden günstigen Wohnraum. Nach hundert Jahren und nur partiell durchgeführten Sanierungsarbeiten, soll nun eine Gesamtinstandsetzung für die nächsten 30 Jahre erfolgen. Dabei gilt als oberste Priorität der Erhalt von möglichst günstigen Mieten. Unser Projektvorschlag baut konzeptionell auf der Prämisse der günstigen Mieten auf. Er versucht, durch reduzierte Eingriffe vorhandene Qualitäten beizubehalten und in einer sensiblen Symbiose mit dem Bestand neue Qualitäten zu ergänzen. Die bauzeittypische Strategie der kräftigen Mehrfarbigkeit als „Ornament des einfachen Mannes“ oder „Ausdruck heiterer Lebensfreude“ (Bruno Taut) soll für die Sanierung der Breitensteinstrasse als Ausgangspunkt dienen, um die vorhandene positive Stimmung einzufangen und im Sinne der Einfachheit weiterzuentwickeln. Die Farbe wird als ästhetisches Material mit einer dezidiert raumbildenden Funktion verstanden, wodurch in den einfachen Häusern Reichhaltigkeit und Grosszügigkeit entsteht.
Planerwahl 1. Preis 2022, geplante Fertigstellung 2027
- — Bauherrschaft
- — Auftragsart
- — Standort
- — Projektstatus
- — Leistungsumfang
- — Baumanagement
- — Bauingenieur
- — HLKS
- — Elektroplanung
- — Bauphysik
- — Fotografie
Stadt Zürich
Planerwahlverfahren
8037 Zürich
Realisierung
Studie, Projektierung, Ausführungsplanung als Generalplaner
Werubau AG
HTB Ingenieure AG
MD-Plan GmbH
R+B Engineering AG
EK Energiekonzepte AG
Baugeschichtliches Archiv Zürich