



Knabenschulhaus Oberegg, Wettbewerb 2. Preis
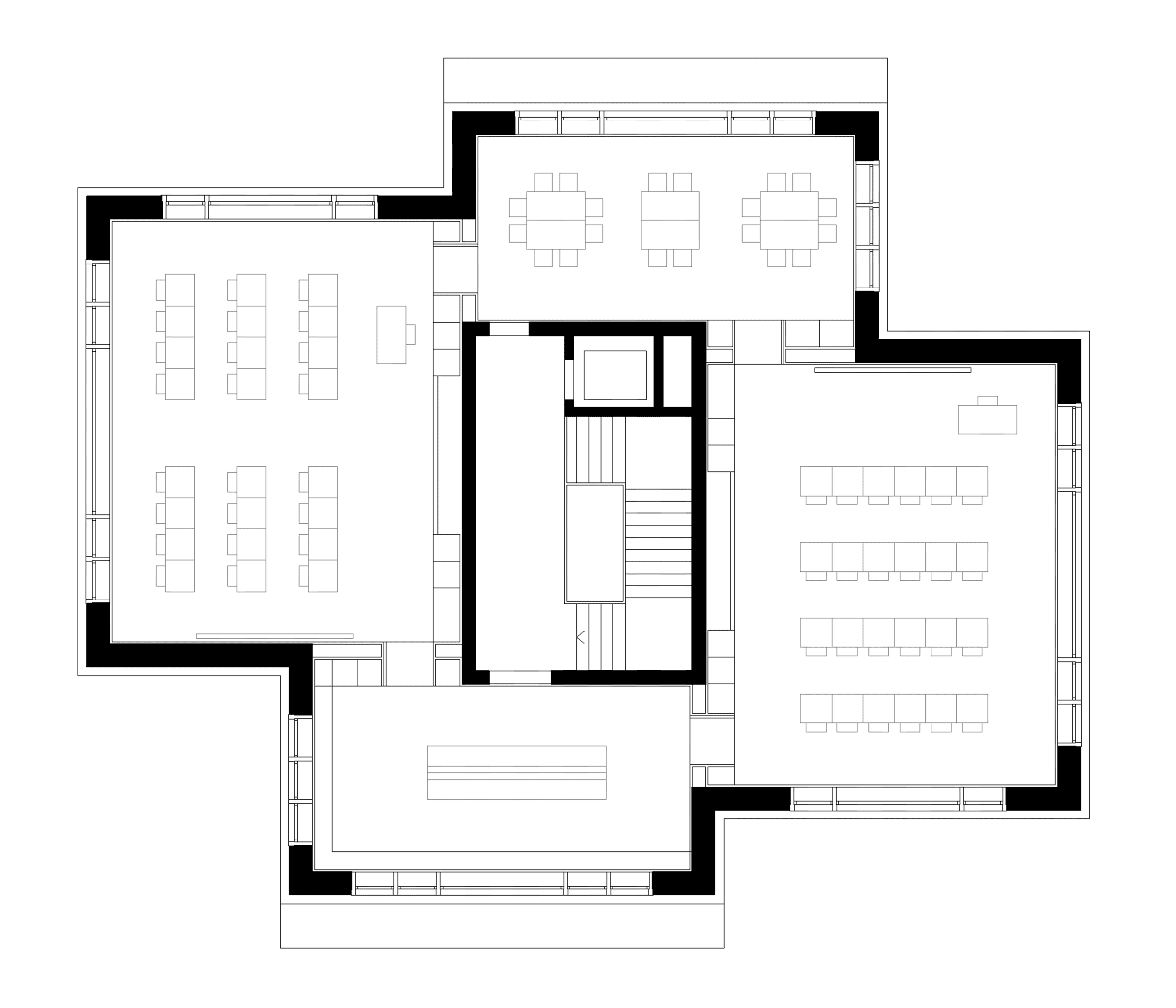
Der Ersatzneubau für das alte Primarschulhaus sitzt als dreigeschossiges solitäres Gebäude am Kirchplatz und organisiert als starkes Zentrum die Räume und Plätze um sich herum. Gleichzeitig bildet es neben der Kirche die neue Adresse für die Schule, ohne dem Pausenhof den Rücken zuzuwenden. Über die räumliche Verzahnung in der Situation und die Gestaltung der Fassade nimmt es einen starken Ortsbezug auf und entspricht so den Anforderungen der Zone für Ortsbildschutz. Der Fassadenaufbau überführt tradi-
tionelle Appenzeller Bauelemente wie das Bandfenster, den Schindelschirm oder den konstruktiven Wit-
terungsschutz in eine neue konstruktiv, funktional und gestalterisch sinnfällige Einheit.
Das Schulhaus wird über einen zentralen Kern erschlossen, welcher von vier Raumkammern pro Ge-
schoss umgeben ist. In den Obergeschossen sind dies jeweils zwei Klassenzimmer, ein Gruppenraum sowie der Garderobenraum, über den das Geschoss betre-ten wird. Die Raum-zu-Raum-Erschliessung ermög-licht einen inneren Rundlauf und bindet die Räume pro Geschoss zu einem Cluster zusammen, welcher eine für die kleinen Schülerinnen und Schüler über-sichtliche Einheit bildet.
Wettbewerb 2012
- — Bauherrschaft
- — Wettbewerb
- — Standort
- — Landschaftsarchitektur
Schulgemeinde Oberegg
selektiver Projektwettbewerb
9413 Oberegg
Haag Landschaftsarchitektur GmbH